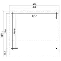
Overkapping Hawaii
Overkapping Hawaii is gemaakt van vurenhout. De wanden, met een dikte van 2,8 centimeter, stel je samen door middel van de stapelbouwmethode. De stapelbouwmethode is een makkelijke manier van opbouwen, waarbij de planken onderling door ingezaagde profielen (tand en groef over de lengte van de plank) en uitsparingen (kruisverbanden) met elkaar verbonden worden. De planken stapel je zonder steunpilaren, laag voor laag op elkaar.
Het dak wordt geleverd met een dakbedekking van asfaltvlies zodat het tuinhuis waterdicht is.
Geïmpregneerd hout
Geïmpregneerd hout heeft een lange levensduur, dankzij een verduurzamingsmiddel wat wordt toegepast wanneer hout wordt behandeld. Het hout wordt beschermd tegen aantasting door invloeden van buitenaf zoals weer, schimmel, ongedierte en bacteriën. Geïmpregneerd hout dient na circa 5 jaar weer opnieuw behandeld te worden met bijvoorbeeld tuinbeits voor een optimale levensduur van het hout.
Fundering
Bij een tuinhuis of overkapping is de fundering van cruciaal belang. Zorg er altijd voor dat de ondergrond stevig verhard en waterpas is. Zo voorkom je verzakkingen. De fundering kan bestaan uit gestort beton, maar ook een strak gelegd terras van betonnen tegels kan voldoen.
Geïmpregneerde onderbalken voorkomen optrekkend vocht in de wanden en verlengen de levensduur. Dit zijn afwateringsprofielen. Ook raden wij aan om een dakgoot set op de overkapping te plaatsen Een dakgoot set zorgt voor betere afvoer van water en beschermt het tuinhuis.
De bijbehorende afwateringsprofiel en dakgootset zijn verkrijgbaar bij GAMMA. Bij de bijbehorende artikelen is de naam Hawaii v ook vermeld.
Tips voor tuinhuizen en overkappingen
De kapschuur heeft verschillende los verkrijgbare accessoires. Wanneer je de overkapping wilt schilderen is het slim om eerst advies bij een verfspecialist te vragen. Het hout moet namelijk vochtregulerend blijven en dus niet afgedicht worden. Daarnaast is een sterke UV bescherming ook van toegevoegde waarde.
Deze overkapping heeft een schuin aflopend dak. Voor dit dak zijn ook shingles in 3 verschillende kleuren beschikbaar. Deze kunnen op het dak geplaatst worden als afwerking en om het tuinhuis extra te beschermen tegen water.
Benodigd gereedschap
Een tuinhuis bouwen doe je niet zonder deze gereedschappen:
- Accu schroefmachine
- Houtboortjes (voorboren schroefplekken) en bitjes
- Handzaag of decoupeerzaag
- Rubber hamer
- Hamer
- Waterpas
- Rolbandmaat
- Bezem
















Beoordelingen
Er zijn nog geen beoordelingen.